- 空间详情
- 空间配套
- 场地介绍
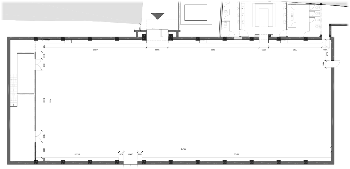
室内面积743平方米,长42*宽17.5,露台面积:350平方米
层高:6米,有吊点,承重:300公斤
层高:6米,有吊点,承重:300公斤
卫生间
化妆间
休息室
空调暖气
网络WIFI
货运电梯
投影LED
灯光音响
化妆间
休息室
空调暖气
网络WIFI
货运电梯
投影LED
灯光音响






